Sản Phẩm
Danh mục
Bài viết mới
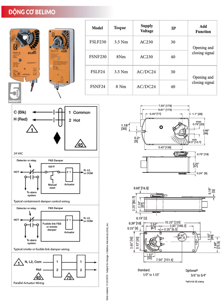
Van Ngăn Cháy Motor TOZEN
Giới thiệu Van Ngăn Cháy TOZEN
Trong các công trình xây dựng hiện nay, hệ thống ống gió và thông gió điều hòa (HVAC) được xem là một trong những đường dẫn nguy hiểm nhất khi xảy ra hỏa hoạn, do khả năng lan truyền nhanh lửa, khói và khí độc giữa các khu vực, tầng và khoang cháy. Chính vì vậy, các quy chuẩn và quy định về phòng cháy chữa cháy của Việt Nam như QCVN 06:2022/BXD và các nghị định hướng dẫn đều bắt buộc phải có giải pháp ngăn cháy lan đối với hệ thống ống gió xuyên tường, xuyên sàn và giữa các khoang cháy.
Trong bối cảnh đó, van ngăn cháy (van chặn lửa/van chống cháy) là thiết bị không thể thiếu trong hệ thống PCCC, có nhiệm vụ tự động đóng kín đường ống khi xảy ra cháy, giúp:
Ngăn chặn lửa và khói lan sang các khu vực khác
Bảo vệ kết cấu công trình và các không gian lân cận
Tạo điều kiện an toàn cho công tác thoát nạn và chữa cháy
Hình Van Ngăn Cháy TOZEN
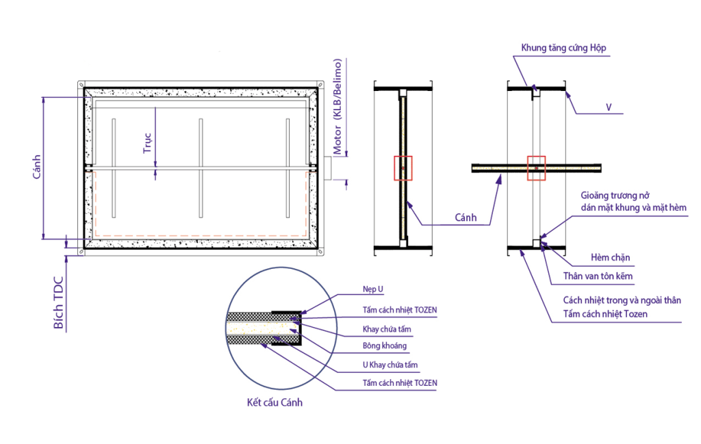
Van ngăn cháy (van chặn lửa/van chống cháy) được thiết kế và sản xuất chuyên biệt cho hệ thống ống gió chống cháy, sử dụng tấm chống cháy TOZEN đạt tiêu chuẩn EI làm vật liệu cách nhiệt và ngăn cháy chính. Khi nhiệt độ môi trường vượt ngưỡng cho phép, van sẽ tự động đóng hoàn toàn nhờ cầu chì nhiệt hoặc motor điều khiển, kết hợp với gioăng trương nở và vật liệu cách nhiệt, đảm bảo duy trì giới hạn chịu lửa EI theo yêu cầu thiết kế.
Với vai trò là thiết bị ngăn cháy lan chủ động, van chặn lửa TOZEN không chỉ giúp đáp ứng yêu cầu pháp lý về PCCC, mà còn đóng vai trò then chốt trong việc bảo vệ tính mạng con người, giảm thiểu thiệt hại tài sản và nâng cao mức độ an toàn tổng thể cho công trình. Đây là giải pháp được ứng dụng rộng rãi cho nhà xưởng, chung cư, trung tâm thương mại, cao ốc văn phòng và các công trình có yêu cầu nghiêm ngặt về an toàn cháy.
Đặc Điểm Nổi Bật
- Chống cháy, cách nhiệt vượt trội: Ngăn lửa và khói từ 60-120 phút (EI 45, EI 60, EI 90, EI 120).
- Vật liệu bền bỉ: Tấm tozen dai, chịu lực tốt, rất chắc chắn, không bị bể và tách lớp khi bắn vít.
- Chống thấm, chống mốc, không gây rỉ sét và ăn mòn kim loại: Thích hợp thi công ngoài trời, tăng tuổi thọ cho kết cấu vật liệu, đảm bảo thẩm mĩ đẹp cho công trình.
- Không chứa độc tố: An toàn với người thi công và sử dụng.
- Dễ lắp đặt: Thiết kế tối ưu, đi kèm phụ kiện chính hãng từ Thanh Hà.
- Giá thành rẻ: Thi công nhanh bằng vít, không cần nẹp góc giữ tấm, tiết kiệm 20%.
- Độ tin cậy cao: Được kiểm định và ứng dụng tại hàng trăm công trình lớn.
Cấu Tạo Van Ngăn Cháy Motor
Chứng nhận và tiêu chuẩn chất lượng
Motor Van Chặn Lửa
