Sản Phẩm
Danh mục
Bài viết mới
Van Ngăn Cháy Cầu Chì TOZEN
Giới thiệu Van Ngăn Cháy Cầu Chì TOZEN
Van ngăn cháy cầu chì là thiết bị ngăn cháy lan thụ động, được lắp đặt trên hệ thống ống gió nhằm tự động đóng kín khi nhiệt độ môi trường vượt ngưỡng cho phép (thường 72°C hoặc 93°C). Khi xảy ra hỏa hoạn, cầu chì nhiệt bị nóng chảy sẽ kích hoạt cơ cấu đóng van, giúp ngăn chặn lửa và khói lan truyền qua đường ống, đảm bảo giới hạn chịu lửa EI theo yêu cầu thiết kế. Van có kết cấu đơn giản, hoạt động ổn định, phù hợp cho các khu vực không yêu cầu điều khiển tự động.
Hình Van Ngăn Cháy Cầu Chì TOZEN
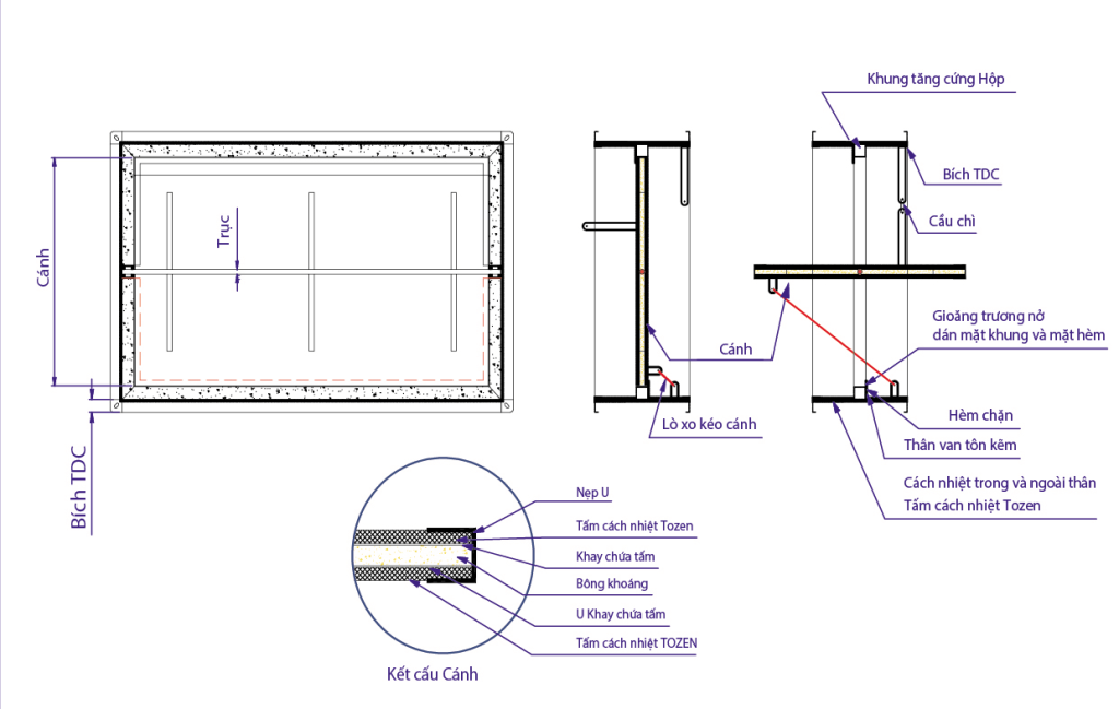
Cấu Tạo
Đặc Điểm Nổi Bật
- Chống cháy, cách nhiệt vượt trội: Ngăn lửa và khói từ 60-120 phút (EI 45, EI 60, EI 90, EI 120).
- Vật liệu bền bỉ: Tấm tozen dai, chịu lực tốt, rất chắc chắn, không bị bể và tách lớp khi bắn vít.
- Chống thấm, chống mốc, không gây rỉ sét và ăn mòn kim loại: Thích hợp thi công ngoài trời, tăng tuổi thọ cho kết cấu vật liệu, đảm bảo thẩm mĩ đẹp cho công trình.
- Không chứa độc tố: An toàn với người thi công và sử dụng.
- Dễ lắp đặt: Thiết kế tối ưu, đi kèm phụ kiện chính hãng từ Thanh Hà.
- Giá thành rẻ: Thi công nhanh bằng vít, không cần nẹp góc giữ tấm, tiết kiệm 20%.
- Độ tin cậy cao: Được kiểm định và ứng dụng tại hàng trăm công trình lớn.
Chứng nhận và tiêu chuẩn chất lượng
